行业资讯>BIM技术在PC建筑中的应用案例
BIM技术在PC建筑中的应用案例
建筑人才中心 2017-07-17 15:18:01 阅读(0

当前,国内越来越多的施工项目都积极应用BIM技术,尤其是在超大型复杂工程、三边工程、工期紧且成本压力大的现浇钢筋混凝土结构工程中,BIM技术的应用越来越凸显其价值,它能更快消化设计方案,更快发现技术问题,更快理出工程数据,用于生产计划、备料、控制进度等。

但是,BIM技术在预制装配式混凝土结构(PC建筑)中的应用还属尚试验阶段,本文以龙信老年宾馆工程为例,详细介绍PC与BIM的结合。BIM技术在该项目施工中应用的技术路线,为BIM技术在预制装配式混凝土结构施工中的应用提供有益的借鉴。


工程概况

龙信老年宾馆项目位于江苏省海门市南海路与嘉陵江路交汇处(见图1),地理位置优越。主楼4层结构平面以下及裙房1~2层为框架剪力墙现浇结构,主楼4~24层为全预制装配整体式框架剪力墙结构体系,25层及机房层为框架剪力墙现浇结构,房屋总高度为88.6m。总建筑面积约21265.1㎡,其中地上面积18605.6㎡,地下面积2659.5㎡。该项目建成后将成为国内第1个达到建筑高度达到88.6m预制装配式建筑,第1个总体的装配力达到了80%的装配式结构。


图1老年公寓项目BIM模型


对于4~24层全预制装配整体式框架剪力墙结构部分,柱子从4层开始,梁从5层顶开始,楼板从5层顶开始、楼梯从4层开始、阳台栏板、空调板从4层开始到24为PCa化。剪力墙、现浇框架柱外立面采用混凝土预制挂板作为现浇墙柱外模板,从4~24层实施,柱子和梁的接合部采用在柱头部现浇,梁钢筋锚固采用键槽连接。楼板采用半PCa化的叠合楼板,梁采用半PCa化的叠合梁。


BIM技术在预制装配式混凝土结构施工运用中的必要性


1)老年公寓PC项目的难点

老年公寓PC项目专业分包多,包括土建、机电安装(含电气、给排水、消防、弱电、暖通)、装饰等专业,各专业工序交替施工,协调难度大,总承包管理范围广而复杂。如何有效推动总承包管理朝着更精细化、信息化的施工主流模式,是本工程的一大难点。

老年公寓PC项目施工协同难度大,是本工程又一大难点。PC项目的施工比常规传统的建筑需协同的专业和环节更多,施工单位应具备较强的图纸深化能力,PC构件工厂的深化设计要考虑的因素是方方面面,不仅要考虑到给排水、电气、消防、弱电、暖通等相关专业的管线综合优化后的正确预埋,而且还要考虑构件施工时为方便施工而预埋的铁件,如吊装预埋件、楼层临边围护用于与钢管立柱焊接的铁板等。连塔式起重机、施工人货梯等的附墙预埋铁件都要考虑到构件图中具体的位置,任何一个环节的出错和遗漏,都会给现场的吊装和施工带来“毁灭性打击”,所以,PC项目的施工需充分协调构件生产环节和施工环节。


2)BIM技术的特点

BIM技术将常规的二维表达转为三维可视模型,各专业的人员可通过清晰的三维模型正确有效地理解设计的意图,协助各方及时、高效决策;采用BIM的项目,各专业间、各工作成员间都在一个三维协同环境中共同工作,深化设计、修改可以实现联动更新,这种无中介及时的沟通方式,很大程度避免因人为沟通不及时而带来的设计错漏;通过BIM可以模拟真实的建造过程和施工场景,并可通过此过程预先发现可能存在的问题,从而确定合理的施工方案来指导施工。


3)BIM技术与老年公寓PC项目施工的互补性

正是因为BIM技术有协调性、可视化、模拟性等特点,为老年公寓项目各专业图纸的整合、构件图的深化、安装管道的综合排布提供有利的技术支撑,通过BIM技术模拟性,我们甚至可以模拟PC构件吊装施工场景,找到可能存在的问题,并对技术方案进行可视化交底。由于BIM技术特点和PC项目特点有良好的互补性,在老年公寓PC项目中应用BIM技术具备先天优势。


BIM技术应用内容及技术路线


利用BIM进行各专业间信息的检测

以往的工程项目之所以有那么多的风险,就是因为工程项目各专业信息零碎化,形成一个个的信息孤岛,信息无法整合和共享,各专业缺少一种共同的交互平台,造成信息流失和传递失误。BIM技术的产生有望改变这一局面,建筑施工司空见惯的“错漏碰缺”和“设计变更”所增加的建造成本、社会成本都可以通过BIM技术得到有效的改善。由于建筑、结构和安装之间共享同一模型信息,检查和解决各专业间存在的冲突更加直观和容易。在老年公寓4~25层PC标准层中,通过整合土建+给排水+电气+消防+弱电各专业模型,标准层初步碰撞成果共计83处。每处碰撞点均有三维图形显示、碰撞位置、碰撞管线和设备名称以及对应图纸位置处,如PC预制框梁与消防喷淋管的碰撞如图2所示。


图2PC预制框梁与消防喷淋管的碰撞

通过图2这个活动碰撞信息,在深化该预制框架梁YKL3(1)-1时,就可在具体位置(相对尺寸和标高)标出该预制梁的预留管洞的尺寸,这样深化后生产的预制框架梁运到现场就可吊装成型,而不需要再在预制梁上进行开洞。

可以想象一下,如果一个PC项目存在大量的类似于以上这种碰撞结果,而单纯靠技术人员的空间想象能力去发现这些碰撞结果,势必会造成遗漏,如果在施工时才发现,则需:返工、修改、开洞、延误工期,无端增加成本,其损失不可估量的。BIM技术可以综合建筑、结构、安装各专业间信息进行检测,帮助我们及早发现问题,防患于未然。


基于BIM的造价管理

在成本管理方面,老年公寓项目将相应的施工定额标准以编码的形式定制到BIM模型上,由系统对工程量进行自动算量,可以精确计算出工程成本。工程量的精准计算对于业主、承包商、材料商、工程管理以及建筑造价等都是十分重要的基础性数据,用软件建模计算工程量精准的前提是所建BIM模型的精准,BIM建模精准算出的工程量不仅远比手工计算要精确而且可以自动形成电子文档进行交换共享远程传递和永久存档。精准的工程量计算是老年公寓项目最关键的要素,它是该项目进行造价测算、工程招标、商务谈判、劳务合同签订、进度款支付等一切造价管理活动的基础。
施工企业精细化管理很难实现的根本原因在于海量的工程数据无法快速准确获取以支持资源计划,致使经验主义盛行,造成成本的浪费。老年公寓项目正是由于应用BIM技术而快速获取大量的工程基础数据,为老年公寓项目部制定精确材料计划提供有效的支撑,大大减少了资源、物流和仓储环节的浪费,为实现该项目限额领料、消耗控制提供技术支撑。


BIM技术能优化管线综合排布

在以上老年公寓中标准层整合土建+给排水+电气+消防+弱电各专业模型而得到的初步碰撞成果,为安装单位的管线综合排布提供了依据。传统的管线综合设计是以二维的形式确定三维的管线关系,技术上存在很多不足,实际施工效果表现不佳,应用鲁班BIM技术后,优势具体体现在以下几个方面:

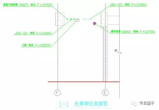
1)老年公寓项目各专业建模并协调优化,三维模型可在任意位置剖切大样及轴测图,观察并调整该处管线的标高及碰撞情况。走廊位置剖面如图3所示。


图3走廊部位剖面

2)老年公寓管线综合后确定各楼层吊顶高度,配合精装修工作的展开。

3)老年公寓BIM模型管线综合后还可以进行实时漫游、重要节点观察批注等。通过BIMWorks可以实现工程内部漫游检查设计合理性,可根据实际工程的需要,任意设定行走路线,也可用键盘进行操作,实现设备动态碰撞对结构内部设备、管线的查看更加方便直观。

4)老年公寓BIM模型已集成了各种设备管线的信息数据,因此还可以对设备管线进行较为精确的列表统计。


BIM技术在PC构件图纸深化中的应用

应用BIM技术在PC结构专业前期建模中把预留洞口作为重要的工作之一,PC结构不同于传统的现浇钢筋混凝土结构,传统现浇混凝土结构浇筑成型后,对于安装管道穿结构的洞口可根据需要开槽、开洞。但PC构件则不能成型后任意开洞、开槽,PC构件所有预留洞必须在PC构件图中清楚、准确的表现出来,以便PC工厂制作构件的精准,PC构件运至现场后,吊装后即可。如果PC构件吊装成型后,发现预留洞没开,将给施工带来很大的障碍。

所以,PC构件制作的严谨性牵涉到与机电专业的密切配合,各专业技术人员必须根据模型进行安装管线与PC构件预留洞口之间的校核工作,找出问题点,提交设计单位进行修改,出具精确的PC构件图,把施工中可能出现的问题消灭在BIM模型中。


基于BIM的PC构件吊装施工模拟

根据PC吊装方案,制作PC构件吊装施工模拟,在真实施工开始之前优化合理的施工方案,在老年公寓PC项目中,以一个标准层6天的吊装施工循环为重点,施工模拟动画准确地、形象地表达了一个施工标准层的施工工艺流程,该模拟施工动画可作为实际施工的指导,有利于现场技术人员对整个工序有个清楚的把握;另外,也在模拟过程中发现一些问题,有利于在现场施工前对施工方案进行及时的调整;同时,该施工模拟动画也可作为宣传企业文化的一个平台。

本文以老年公寓预制装配式混凝土结构项目为例,首先介绍了老年公寓预制装配式混凝土结构的难点和BIM技术的特点,进而论述了BIM技术和老年公寓预制装配式混凝土结构有良好的互补性,在老年公寓PC项目中应用BIM技术具备先天优势;然后,详细介绍了BIM技术在该项目应用的技术路线,从应用BIM技术进行各专业间信息的检测、基于BIM技术的造价管理、BIM技术优化管线综合排布、BIM技术在PC构件图纸深化中的应用、基于BIM的PC构件吊装施工模拟5大方面进行展开,为同类工程项目应用BIM技术提供了借鉴。


热门文章
  1. 2016年建筑市场将发生哪些大事?
  2. 建企“走出去”:各区域市场应如何应对?
  3. 2016节后政策连连看:基建投资迎来多重利好!
  4. 2016招聘会,相聚中南,与你同行!
  5. 住建部长回应“房价暴涨”:将采取五大措施
  6. 2016最新一二三线城市划分 这次终于弄清楚了
  7. 十三五高速铁路网曝光 多彩中国绘未来新图景
  8. “工匠精神”首次登上政府工作报告,建筑业的工匠精神在哪儿?
  9. 国土资源部部长:因城施策房价一定会稳定住
  10. 十三五定调新型城镇化 1亿农民工市民化大幕开启
服务热线:18862971288    全国统一免费电话:400-690-7198    24小时技术QQ:970602863、279551734
Copyright  ©  2026    江苏铁军软件科技有限公司    All Rights Reserved    苏ICP备12035891号